Fortune Lane Elstree WD6

Sold £4,250,000

6 5 6 Garage 3 Gardens 1
« Back

Calculate Your Stamp Duty

£

Results

Stamp Duty To Pay:

Effective Rate:

Tax Band % Taxable Sum Tax
Get in Touch Email Us


Property Description

Pennywell Manor is undoubtedly one of the most prestigious homes in Hertfordshire. A truly stunning home in style, design, technology and specification , discreetly situated at the end of a quiet country lane. this magnificent home offers a stunning fusion of traditional character to the exterior and contemporary, state of the art features within.

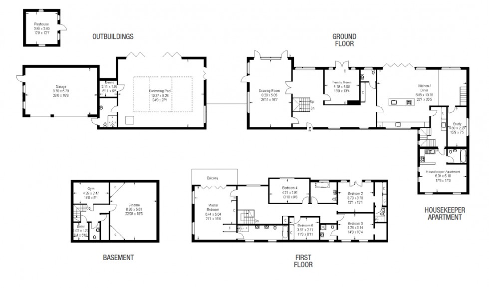
Having been extensively refurbished and rebuilt, this exceptional unique residence set within substantial private grounds offers incredible breath taking panoramic countryside views over greenbelt and towards London. Positioned in an idyllic and peaceful location, yet conveniently located close to Elstree Village and exceptional local schooling this outstanding home benefits from 6 bedrooms, stunning Poggenpohl Kitchen opening to breakfast room, Drawing room,  lavish cinema room, gym, indoor swimming pool and steam-room as well as a stunning double-height feature glass atrium , garageing for 3 cars and a further parking for at least 6 others.


Floorplan



Floorplan for Fortune Lane, Elstree