Deansway Hampstead Garden Suburb N2

Sold £1,375,000

3 2 3 Garage 1 Gardens 1
« Back

Calculate Your Stamp Duty

£

Results

Stamp Duty To Pay:

Effective Rate:

Tax Band % Taxable Sum Tax
Get in Touch Email Us


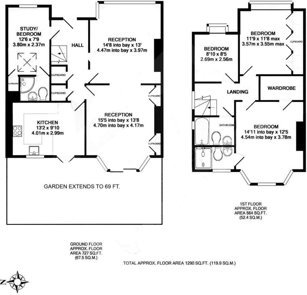
Property Description

An attractive Tudor style, beautifully refurbished 3 bedroom, semi detached house in this fantastic location within moments walk of East Finchley underground station. 


Floorplan



Floorplan for Deansway, Hampstead Garden Suburb