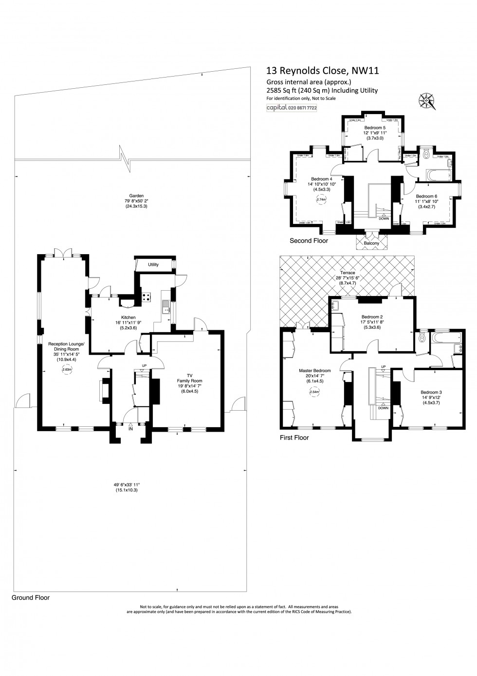
Reynolds Close Hampstead Garden Suburb NW11

Sold £2,495,000

6 3 3
« Back

Calculate Your Stamp Duty

£

Results

Stamp Duty To Pay:

Effective Rate:

Tax Band % Taxable Sum Tax
Get in Touch Email Us


Property Description

FIRST TIME ON THE MARKET IN OVER 50 YEARS....A gorgeous Grade II listed detached 6 bedroom family home in this lovely quiet cul de sac located directly opposite the rolling acres of the heath extension as well as a short walk of Golders Green's underground station (Northern line), multiple coffee shops, supermarkets and restaurants.

The house is in need of modernisation and refurbishment but offers amazing scope for improvement and to design the perfect home. 


Floorplan



Floorplan for Reynolds Close, Hampstead Garden Suburb