Canons Close, The Bishops Avenue London N2

Let POA

5 4 4

(Council Tax Band: H)

« Back

Calculate Your Stamp Duty

£

Results

Stamp Duty To Pay:

Effective Rate:

Tax Band % Taxable Sum Tax
Get in Touch Email Us


Property Description

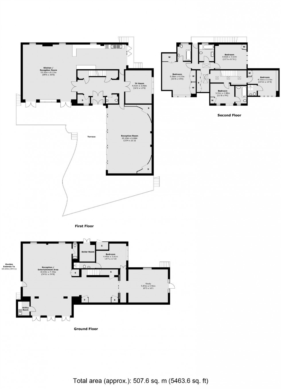
Currently under refurbishment is this large 4/5 bedroom Detached home, in a  prime position in a cul-de-sac just off The Bishops Avenue, close to Kenwood. This unique low-built detached property is discreetly hidden from the road behind electronic gates and a sweeping driveway with parking for numerous cars.

Extending to over 5000 sq.ft. arranged on 3 levels, surrounded by fabulous secluded  landscaped gardens and featuring huge reception rooms/ entertaining space.
Canons Close is adjacent to the ultra-exclusivity of The Bishops Avenue, close to the natural beauty of neighbouring Hampstead Heath & Kenwood. The 790-acre parkland is only moments away, with the prestigious Kenwood House at its entrance.
The Bishops Avenue sits between two of London’s most charming villages, Highgate and Hampstead. Monkswell enjoys the proximity and benefits of both. Highgate Village, with its hill-top location enjoys panoramic views over the city and is on the property’s doorstep, whilst Hampstead Village is just across the Heath. Both villages are wonderfully atmospheric with fashion boutiques, antique shops and a renowned café culture.


Floorplan



Floorplan for The Bishops Avenue, London