Harewood Avenue, The Claves Mill Hill East NW7

For Sale £1,395,000

4 4 2
« Back

Calculate Your Stamp Duty

£

Results

Stamp Duty To Pay:

Effective Rate:

Tax Band % Taxable Sum Tax
Get in Touch Email Us


Property Description

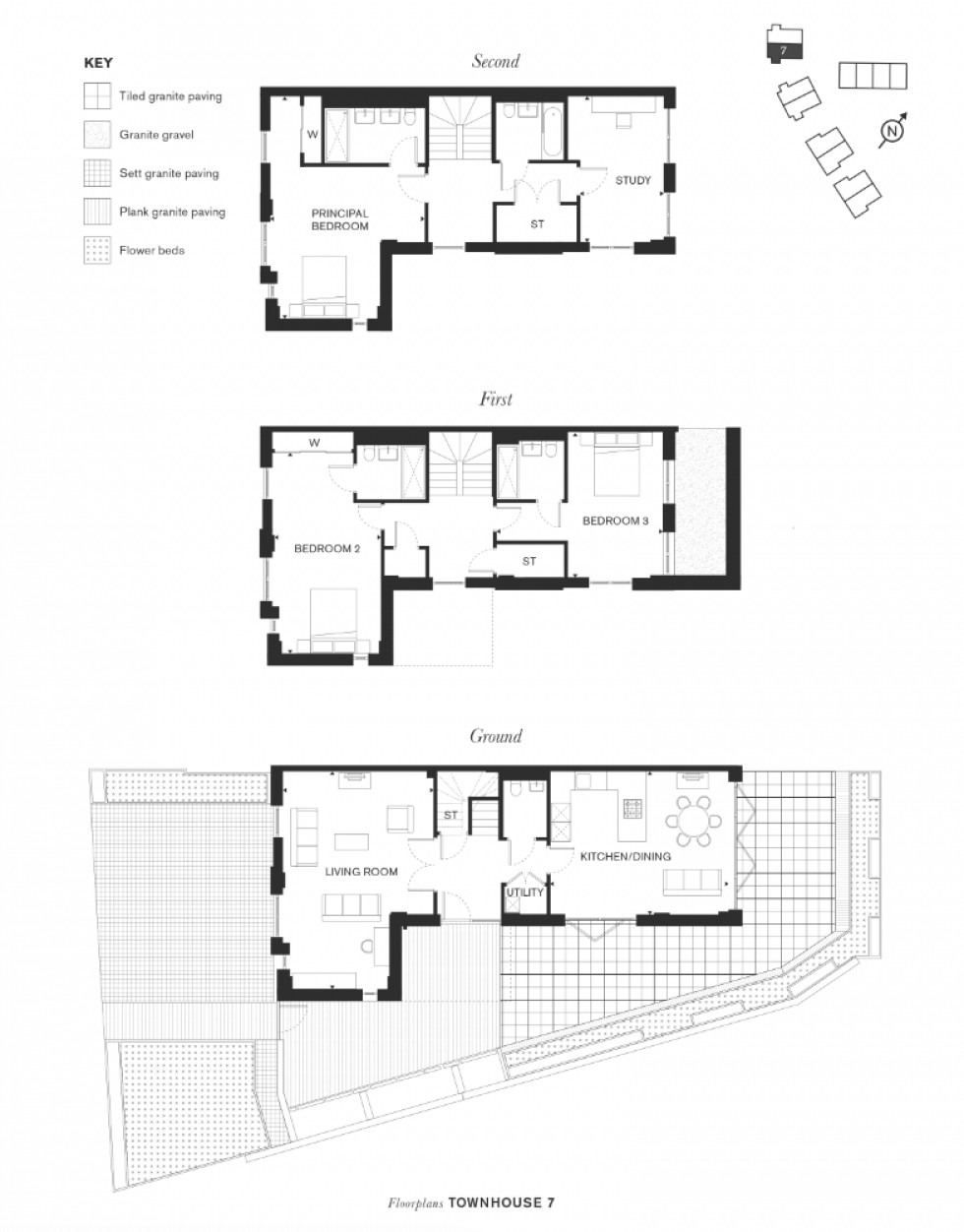
LAST HOUSE ....READY NOW....A fabulous 4 bedroom, 4 bathroom brand new townhouse (2132 sq ft) at The Claves in Mill Hill, just 10 minutes from Mill Hill East tube station (Northern line). Features include an 18 ft x 14’9 ft kitchen/diner, 22 ft x 15’9 ft reception, small patio garden & driveway with off street parking for 2 cars.


Floorplan



Floorplan for The Claves, Mill Hill East

Floorplan for The Claves, Mill Hill East