Grange Avenue Totteridge N20

For Sale £4,000,000

7 6 5 Garage 2 Gardens 1
« Back

Calculate Your Stamp Duty

£

Results

Stamp Duty To Pay:

Effective Rate:

Tax Band % Taxable Sum Tax
Get in Touch Email Us


Property Description

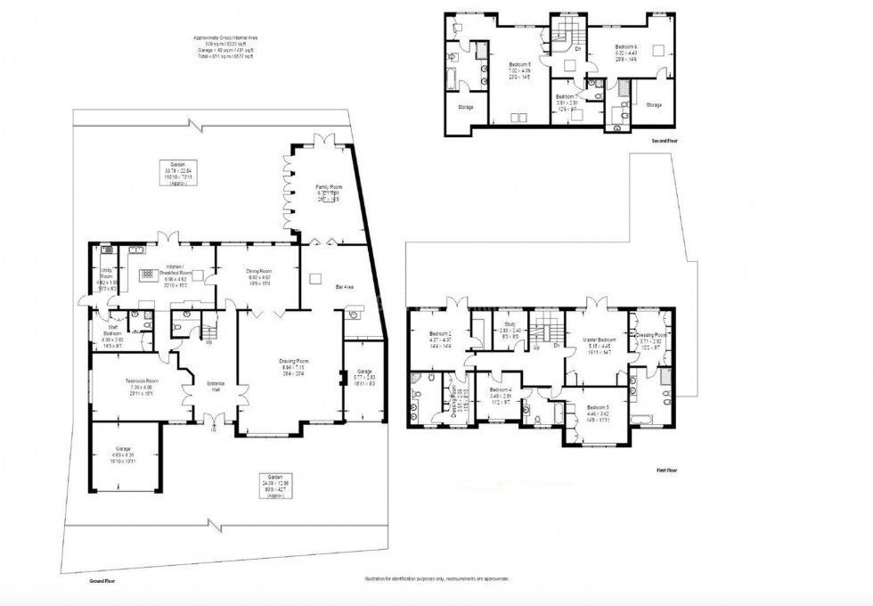
A substantial and imposing 6/7 bedroom residence, offering approximately 6,200 square feet of accommodation, located in this exclusive, quiet cul-de-sac off Totteridge Village.

The property features five reception rooms, a large kitchen/breakfast room, a fabulous 120ft rear garden backing onto green belt , as well as two garages. A carriage driveway provides further off-street parking for 6/7 cars.


Floorplan



Floorplan for Grange Avenue, Totteridge