Courtyard House Mill Hill NW7

To Let £692 Per Week

2 2 1
« Back

Calculate Your Stamp Duty

£

Results

Stamp Duty To Pay:

Effective Rate:

Tax Band % Taxable Sum Tax
Get in Touch Email Us


Property Description

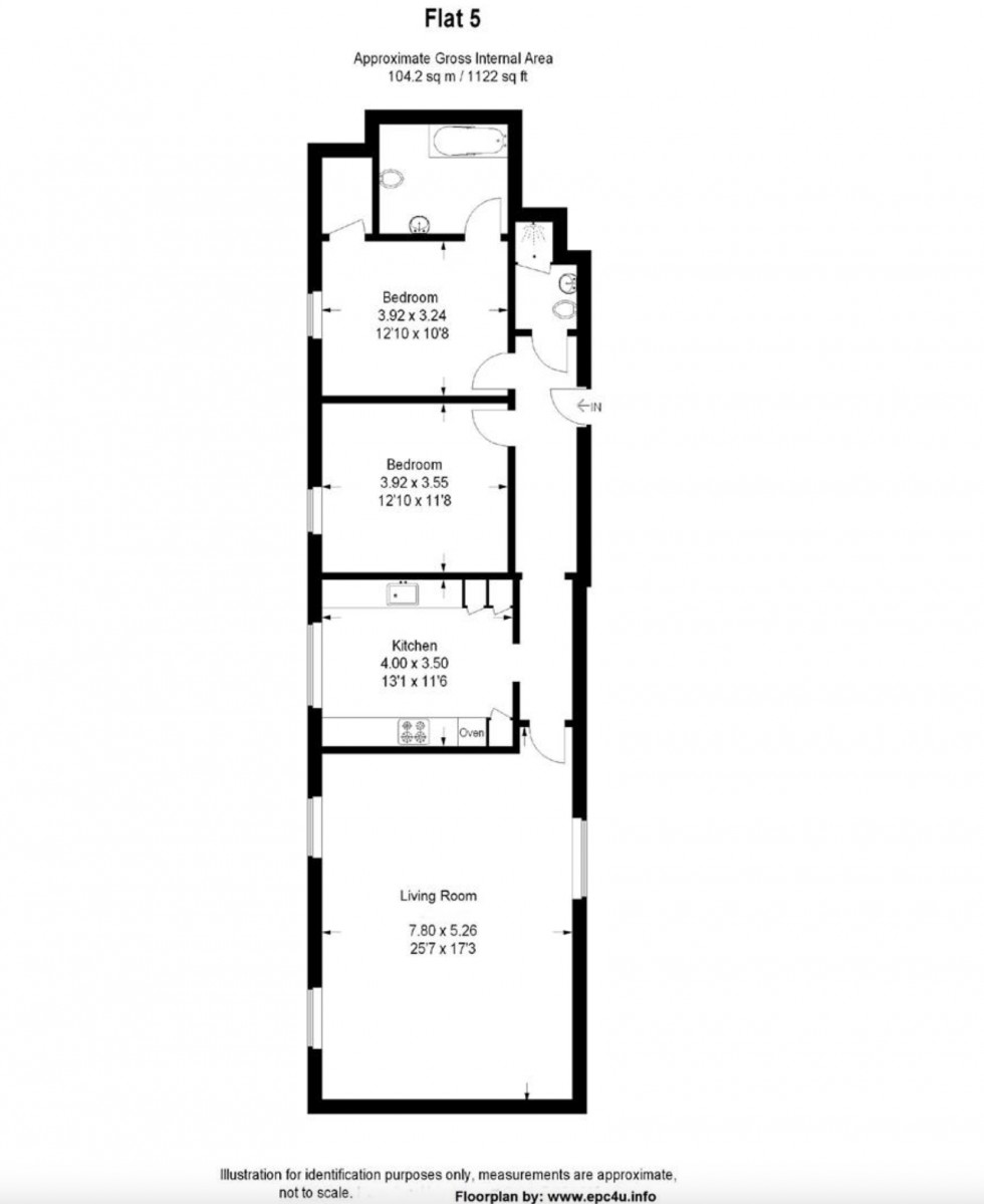
A fantastic 2 bedroom, 2 bathroom ground floor apartment situated within the exclusive 'Mill Heights’. Offering 1122 sq ft of accommodation & finished in a contemporary style, yet retaining many original period features. Benefits include a 25’7 ft x 17’3 ft reception, lovely modern kitchen with Siemens appliances and granite work surfaces, Oak flooring, Lutron lighting, gorgeous landscaped communal gardens and a secure reserved parking space in the gorgeous courtyard. Mill Heights, is a stunning newly refurbished gated development converted from this period building dating back to 1892. Located in Mill Hill Village, just off The Ridgeway, within half a mile of Mill Hill Broadway’s coffee shops, restaurants & boutiques, as well as Thameslink station with fast access to The City. 2 bedrooms En-suite bathroom Shower room Kitchen/diner Reception room Reserved parking Landscaped communal gardens


Floorplan



Floorplan for The Ridgeway, Mill Hill