Chessington Lodge,Regents Park Road Finchley N3

For Sale £625,000

2 1 1

(Council Tax Band: E)

« Back

Calculate Your Stamp Duty

£

Results

Stamp Duty To Pay:

Effective Rate:

Tax Band % Taxable Sum Tax
Get in Touch Email Us


Property Description

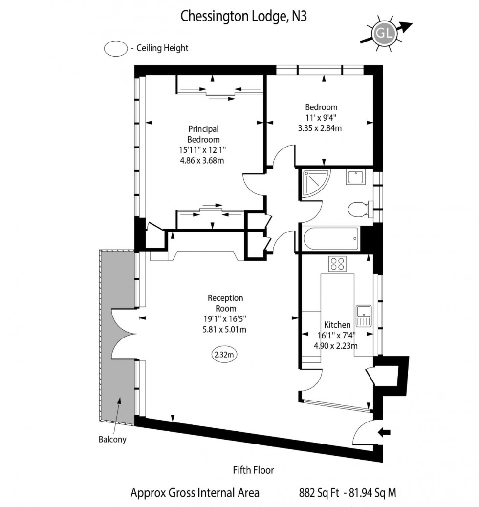
A fabulous 2 bedroom apartment with west facing balcony on the 5th floor of this popular block, located on Regents Park Road within easy access of the multiple shops, cafes and restaurants of both Temple Fortune & Regents Park Road, as well as connecting bus routes directly outside the block.

Featuring 882 sq ft of spacious accommodation including a fabulous large reception with dining area opening to the balcony, porter, lift and a long lease with a share of the freehold.


Floorplan



Floorplan for Regents Park Road, Finchley