Common Lane Letchmore Heath WD25

Sold £1,195,000

4 2 3 Garage 1 Gardens 1
« Back

Calculate Your Stamp Duty

£

Results

Stamp Duty To Pay:

Effective Rate:

Tax Band % Taxable Sum Tax
Get in Touch Email Us


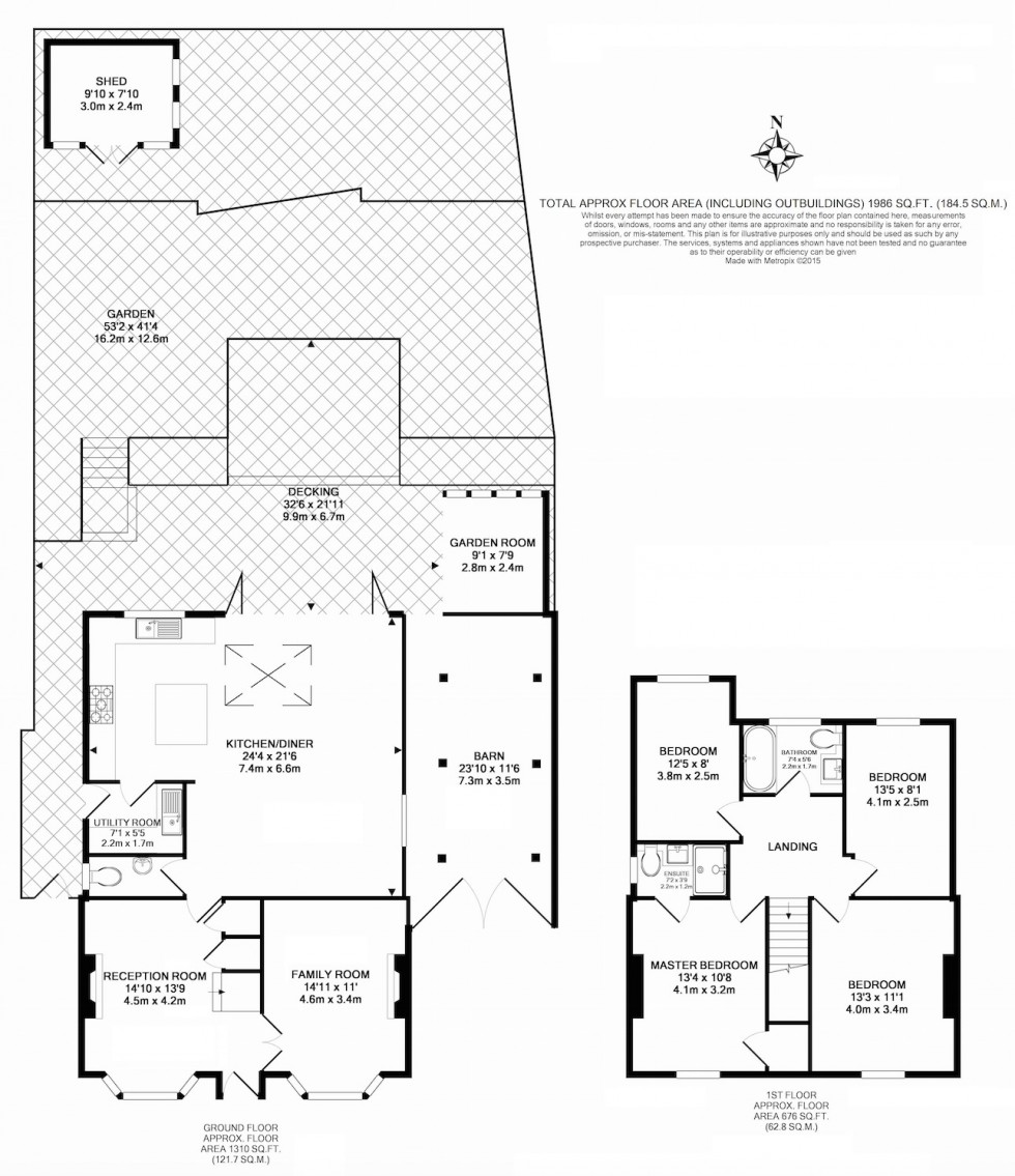
Property Description

A stunning 4 bedroom, 2 bathroom detached, listed cottage originally built in 1875 located in Letchmore Heath and surrounded by beautiful countryside yet with easy access of Radlett. Having been beautifully extended and totally modernised and refurbished in the last 12 months this wonderful home is offered in immaculate, "ready to move" order. Features include a magnificent 24’ x 21 open plan kitchen/diner with bi-fold doors opening onto a large deck and garden with covered car port and seating area, lounge hall with limestone fireplace and real wood burner, underfloor heating to the ground floor and off street parking for 3 cars.


Floorplan



Floorplan for Common Lane, Letchmore Heath