Carmelite Place East Finchley N2

Sold £825,000

2 2 1 Gardens 1
« Back

Calculate Your Stamp Duty

£

Results

Stamp Duty To Pay:

Effective Rate:

Tax Band % Taxable Sum Tax
Get in Touch Email Us


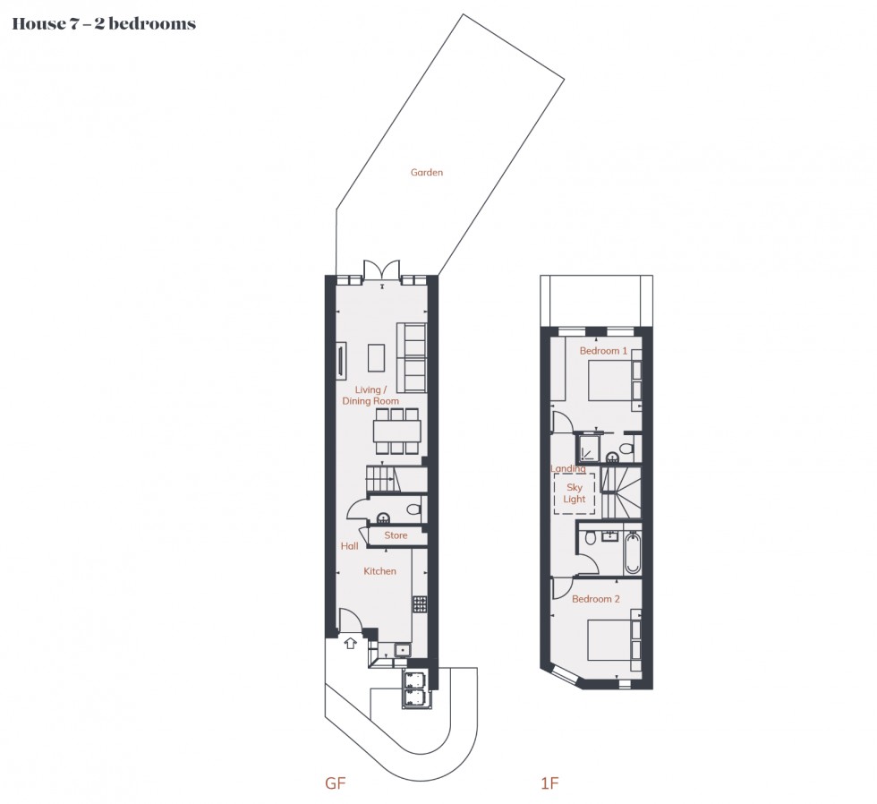
Property Description

A stunning brand new two bedroom, two bathroom 937 sq ft house arranged over two floors in this exclusive gated walled development of only 15 luxury houses set in beautiful landscaped grounds.

Features include underfloor heating to the ground floor, lovely 21ft reception/dining room opening to a good size private rear garden with patio, secure gated parking space with optional electric charging points.

Located within half a mile of shopping and transport facilities of Hampstead Garden Suburb's Market Place, as well as a short walk of shops at East End Road. East Finchley station (Northern line) is within 1 mile, whilst Chandos Tennis Club, PureGym  & Finchley Cricket Club are all within a 5 minute walk.


Floorplan



Floorplan for Carmelite Place, East Finchley