Temple Fortune Lane Temple Fortune NW11

To Let £1,500 Per Week

3 3 1 Gardens 1
« Back

Calculate Your Stamp Duty

£

Results

Stamp Duty To Pay:

Effective Rate:

Tax Band % Taxable Sum Tax
Get in Touch Email Us


Property Description

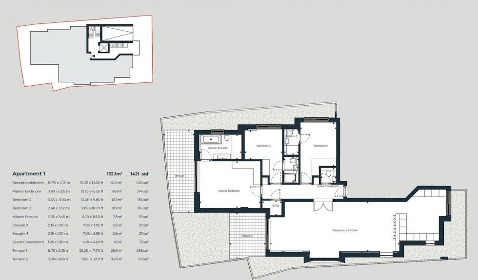
A 3 bedroom, 3 bathroom (all en-suite) lateral garden apartment occupying the whole ground floor of this magnificent brand new boutique block with a fabulous residents roof garden, within moments of Temple Fortune’s coffee shops restaurants & shopping facilities and just a 10 minute walk of the Heath Extension. 

Built and finished to a high specification and flooded with natural light through the huge windows, features include a stunning 35ft reception with super slim aluminium doors room opening to a fabulous private south facing  terrace, a fabulous kitchen with breakfast bar, large main bedroom with access to terrace and large luxury en-suite bathroom. Further benefits include underfloor heating, underground parking, air conditioning to main bedroom and reception,height doors and a storage cupboard  in the basement.

EPC Rating B 

London Borough of Barnet 

Available 21st July 

 


Floorplan



Floorplan for Temple Fortune Lane, Temple Fortune