Newlands Avenue Radlett WD7

For Sale £2,700,000

7 7 5 Garage 1 Gardens 2
« Back

Calculate Your Stamp Duty

£

Results

Stamp Duty To Pay:

Effective Rate:

Tax Band % Taxable Sum Tax
Get in Touch Email Us


Property Description

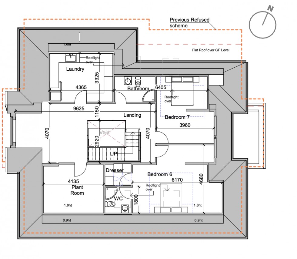
SITE FOR SALE WITH FULL PLANNING PERMISSION to build a fabulous 7000 sq ft house with large basement leisure complex, in the area's most exclusive turning.

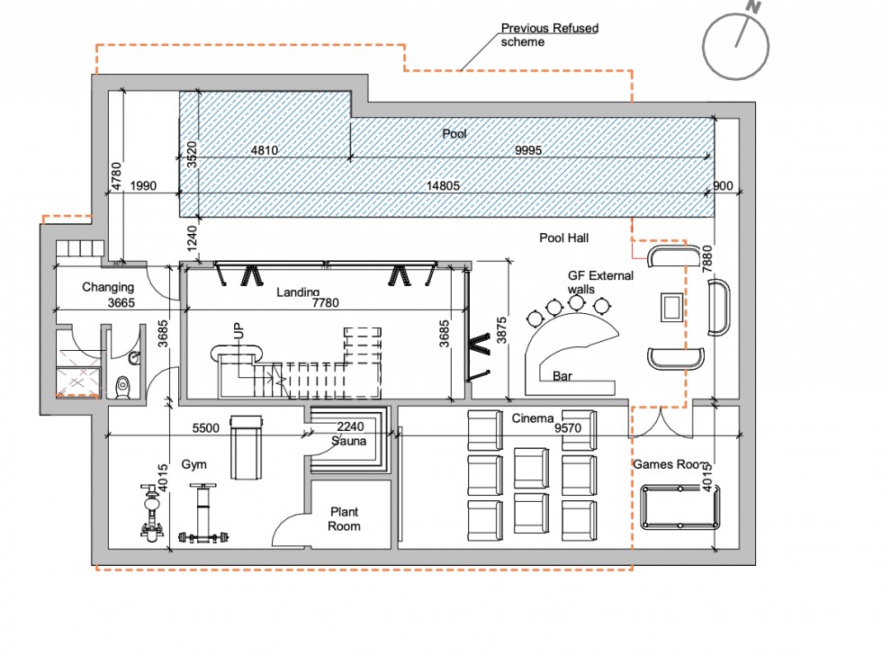
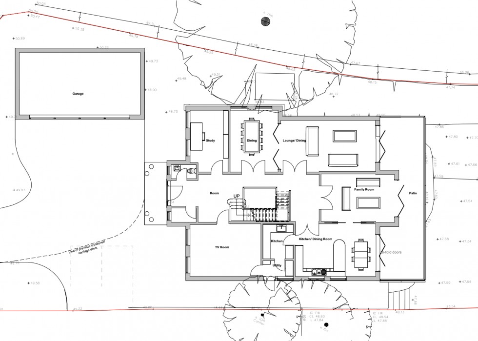
The new house will feature 7 bedroom suites, 5 reception rooms, lower leisure level with indoor pool, bar and seating area, cinema room/ games room, gym with sauna and changing rooms.

Conveniently located within a 10 minute walk of Radlett high street, with its multiple coffee shops, restaurants, supermarkets and Thameslink station with its fast service into the city.

LINK TO PLANS
https://shorturl.at/dMtNs


Floorplan



Floorplan for Newlands Avenue, Radlett

Floorplan for Newlands Avenue, Radlett

Floorplan for Newlands Avenue, Radlett

Floorplan for Newlands Avenue, Radlett