Aylmer Road Hampstead Garden Suburb / East Finchley borders N2

For Sale £1,250,000

2 2 1 Gardens 1

(Council Tax Band: G)

« Back

Calculate Your Stamp Duty

£

Results

Stamp Duty To Pay:

Effective Rate:

Tax Band % Taxable Sum Tax
Get in Touch Email Us


Property Description

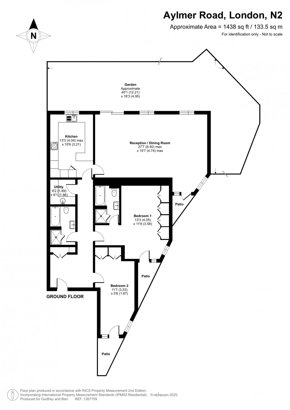
A very large 2 double bedroom, 2 bathroom, 1,438 sq ft garden apartment in this luxury, secure gated development within half a mile of East Finchley tube station (Northern line), as well as the shops at Hampstead Garden Suburb’s Market Place.

Built and finished to a high specification, features include a 27’7 ft x 19’7 ft lounge/dining room with sliding doors opening onto a spacious 50 ft private terrace which opens onto lovely communal gardens, utility room, underfloor heating, Lutron lighting, separate storage cupboard & 2 reserved parking spaces.

Kitchen/breakfast room, Lounge/dining room, 2 bathrooms (1 en-suite), 50 ft private terrace opening onto communal gardens, Utility room, Underfloor heating, Lutron lighting, 2 reserved parking spaces. SOLE AGENTS.


Floorplan



Floorplan for Aylmer Road, Hampstead Garden Suburb / East Finchley borders