Camlet Way Hadley Wood EN4

To Let £1,442 Per Week

3 3 1
« Back

Calculate Your Stamp Duty

£

Results

Stamp Duty To Pay:

Effective Rate:

Tax Band % Taxable Sum Tax
Get in Touch Email Us


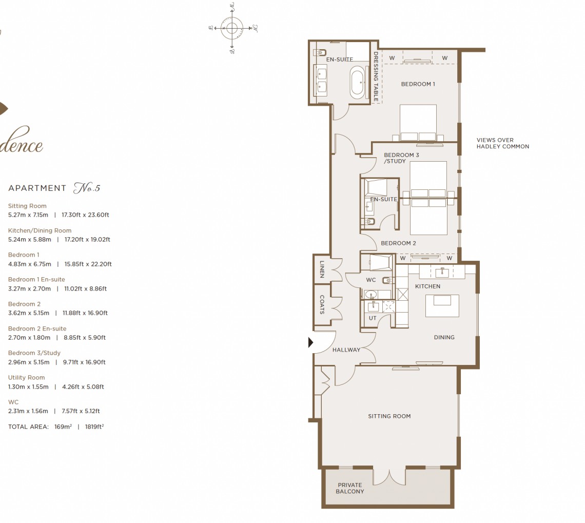
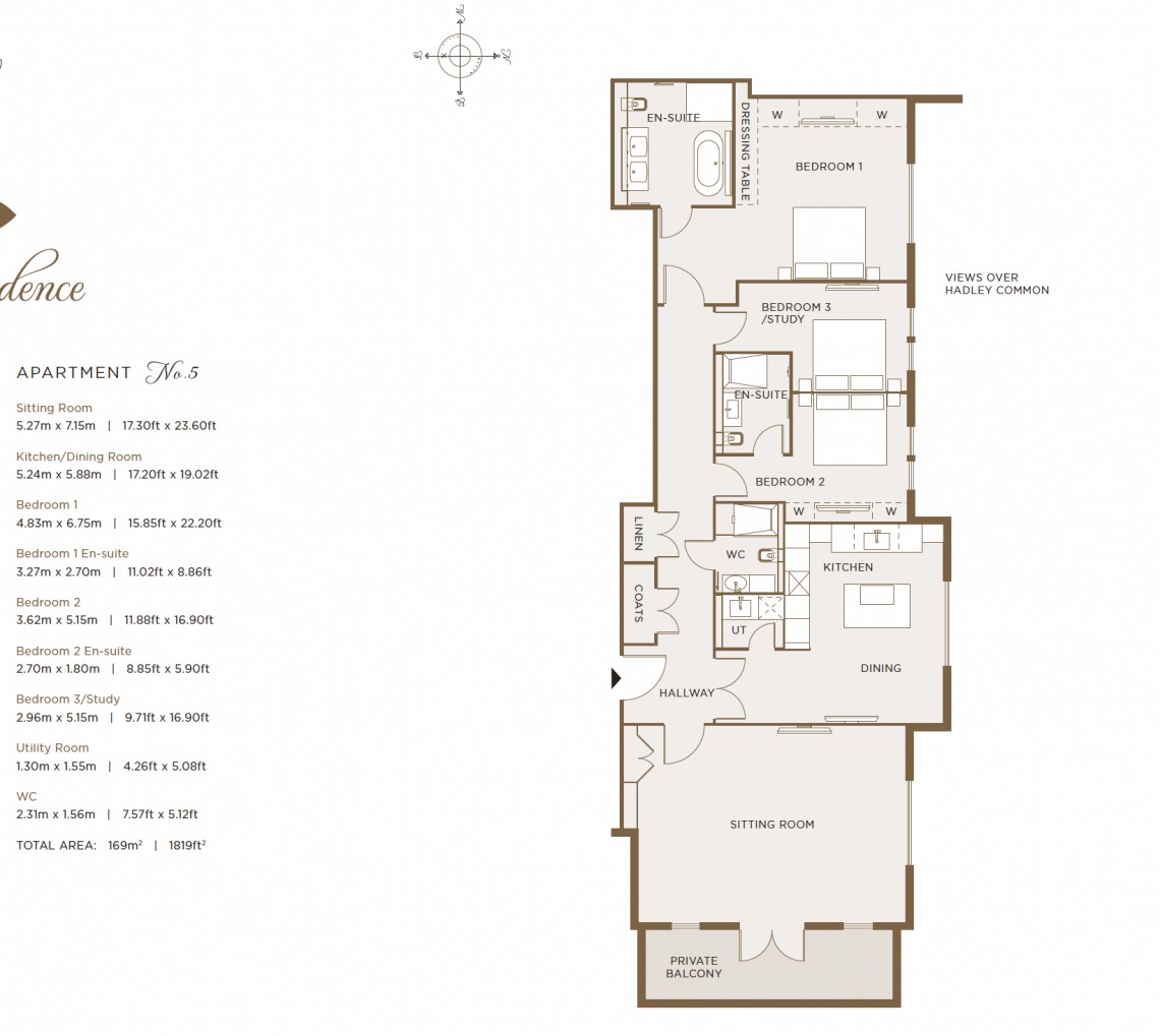
Property Description

A stunning large 3 bedroom  apartment in this exclusive gated luxury development (1819 sq ft ) benefitting from secure underground parking , private concierge and a residents gym. 

Located in one of the most exclusive address in Hadley Wood ,Features include a 23ft x 17ft reception room opening to a large balcony, a fabulous kitchen and utility room,  , Lutron mood lighting, under floor heating and air conditioning throughout.

AVAILABLE NOW