Bushey Heath Bushey WD23

To Let £2,538 Per Week

3 3 3 Garage 1 Gardens 1
« Back

Calculate Your Stamp Duty

£

Results

Stamp Duty To Pay:

Effective Rate:

Tax Band % Taxable Sum Tax
Get in Touch Email Us


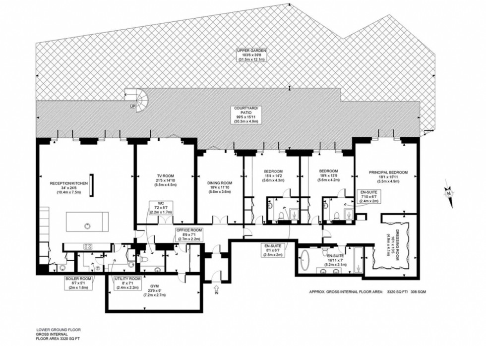
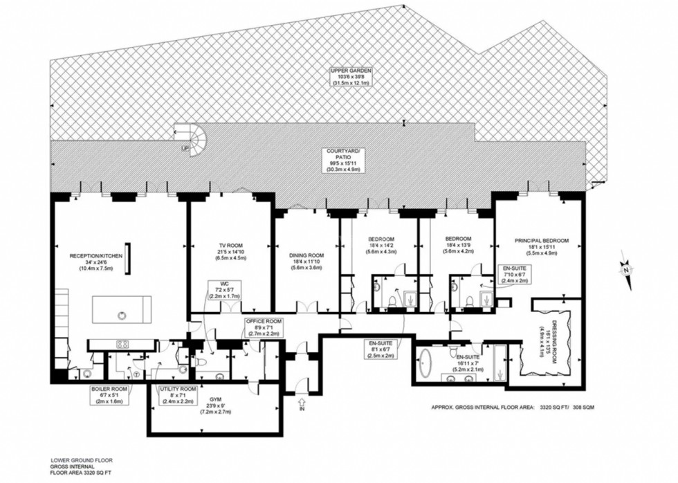
Property Description

A stunning 3 bedroom, 3 bathroom huge 3,320 sq ft fully furnished luxury apartment in this secure gated development featuring an incredible 100ft courtyard patio and elevated private garden as well as secure underground parking.

Offered in immaculate order throughout this incredible home features a huge 34ft Kitchen diner / reception , Amazing main suite with large luxury dressing room and bathroom, separate Dining Room, Tv room / den and a fabulous fully fitted private gym.

Further benefits include , mood lighting, underfloor heating , air conditioning, all rooms opening to the huge private terrace & 2 reserved underground parking spaces.


Floorplan



Floorplan for Bushey Heath, Bushey