Abbey View Mill Hill NW7

Sold £2,195,000

5 2 5 Garage 2 Gardens 1
« Back

Calculate Your Stamp Duty

£

Results

Stamp Duty To Pay:

Effective Rate:

Tax Band % Taxable Sum Tax
Get in Touch Email Us


Property Description

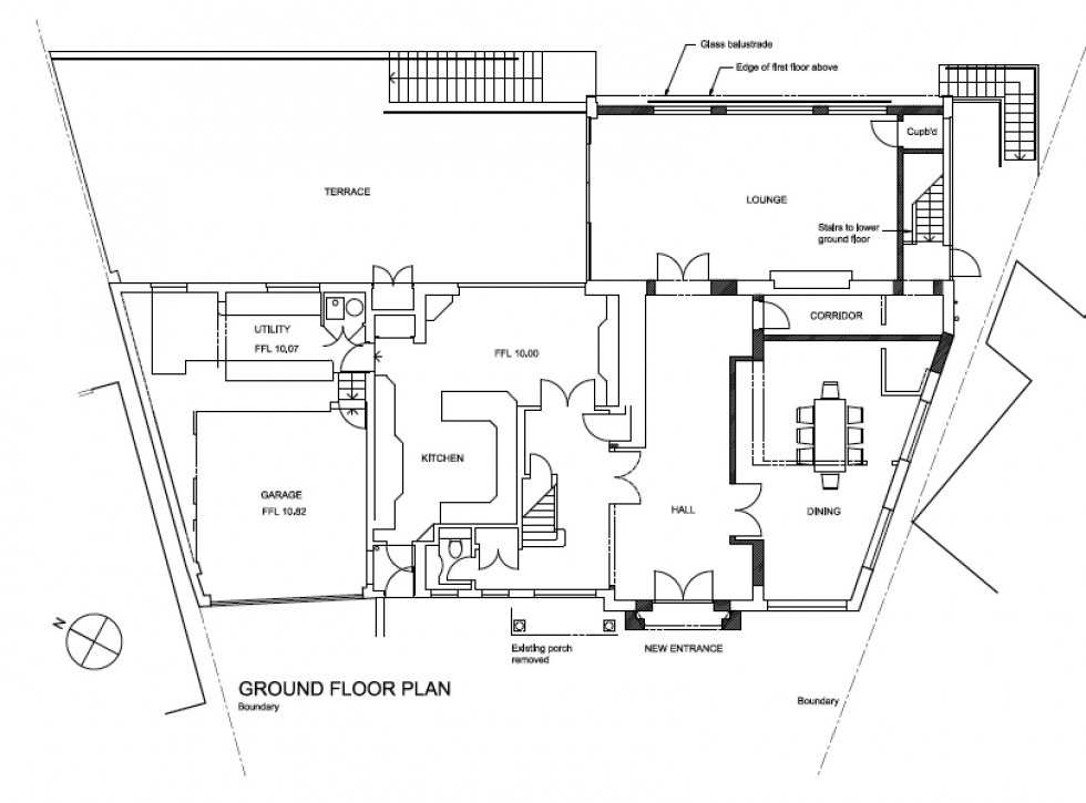
A fantastic large detached, 5 bedroom family home (5300 sq ft ) set back from the road in this lovely quiet cul-de-sac just off Marsh Lane . Features include a 46ft x 35ft reception room, 25ft x 23ft kitchen/breakfast room and an enormous 76ft x 17ft open plan family room / den with doors opening to the 130ft x 130ft garden.

Further features include 2 large terraces, double garage and off street parking for 2 cars. The house has current planning permission to extend at the rear and above the garage creating approx. 1000 sq.ft of accommodation.


Floorplan



Floorplan for Abbey View, Mill Hill

Floorplan for Abbey View, Mill Hill

Floorplan for Abbey View, Mill Hill

Floorplan for Abbey View, Mill Hill

Floorplan for Abbey View, Mill Hill