The Chapel, Rosary Manor Mill Hill Village NW7

For Sale £2,250,000

4 4 4 Gardens 1
« Back

Calculate Your Stamp Duty

£

Results

Stamp Duty To Pay:

Effective Rate:

Tax Band % Taxable Sum Tax
Get in Touch Email Us


Property Description

A Masterpiece, The Chapel at Rosary Manor, a blank canvas.

BEING SOLD AS A REFURBISHMENT PROJECT WITH FULL PLANNING PERMISSION AND BUILDING REGS ALLOWING A BUYER TO DESIGN BUILD AND FINISH THEIR DREAM HOME.

 6,500 Sq Ft 4 bedroom, 4 bathrooms, leisure floor | Grade II Listed Landmark

Rarely does a building of this scale and soul become available in such a prestigious enclave, a place in Mill Hill history.

The Opportunity

Dating back to 1867, An architectural rarity," The Chapel" at Rosary Manor offers the chance to own one of North London’s most significant private homes set within the exclusive, high-security gates of the Rosary Manor estate.

The Vision
The finished property will be a masterclass in volume and light, designed to honour the building's heritage while delivering prime modern luxury:

The Grand Reception: A magnificent, vaulted open-plan living and dining featuring soaring ceiling heights and original architectural drama.

The Main suite: A galleried main suite overlooking the double-height void, featuring direct access to a private, terrace with panoramic views over the huge garden towards Greenbelt.

The Gallery: A stunning galleried study suspended above the main reception space perfect for a home office.

Entertainment & Leisure: A wellness suite with Sauna , cold plunge and gym, dedicated home cinema, a cozy snug for intimate evenings, and four expansive bedroom suites.

The Grounds: A 90ft private rear garden and a large master terrace overlooking acres of protected greenbelt countryside.

Location & Lifestyle

Just off The Ridgeway, the heart of Mill Hill Village, this home offers a "country life" atmosphere within London. You are moments from elite schooling and close to Mill Hill Broadway's boutiques, all while being a short commute from the City and West End.

Key Specifications:

Internal Area:Approx. 6,500 sq. ft.
Parking:4 Spaces total 2 reserved on site and 2 underground in the adjacent Village Green development.
Views:Unrivaled vistas over rolling greenbelt fields.

View the Future

Explore the360° Virtual Tosee the incredible potential of this property.

https://idoru3d.com/vrtours/thechapel/tour.html


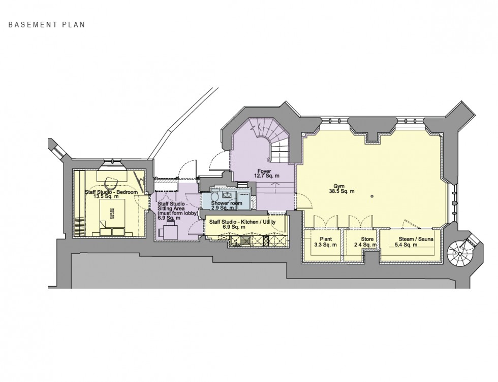
Floorplan



Floorplan for Rosary Manor, Mill Hill Village

Floorplan for Rosary Manor, Mill Hill Village

Floorplan for Rosary Manor, Mill Hill Village